Vendita
ABITAZIONE INDIPENDENTE
TUGLIE (LE)
€ 51.000
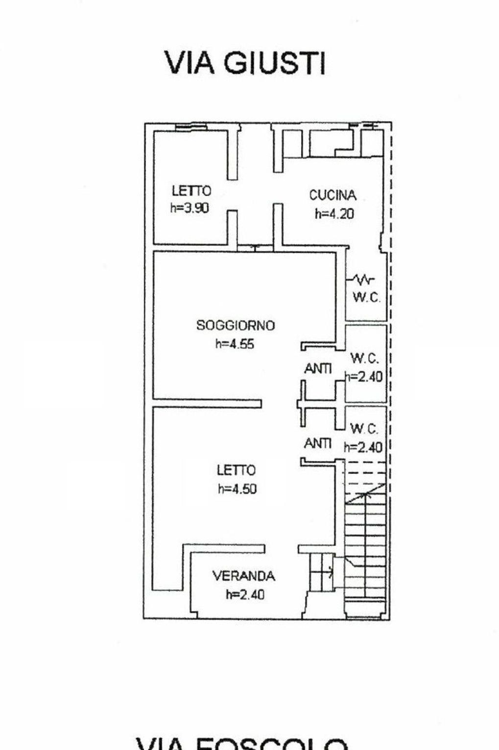
A Tuglie, a pochi chilometri dalle spiagge della baia di Gallipoli, lo studio immobiliare PRIME REAL ESTATE SERVICES propone la vendita di un'abitazione d'epoca, indipendente, di circa 80 mq. L'abitazione è stata recentemente ristrutturata e adibita a casa vacanza con la possibilità di avere 2 mini appartamenti dotati di ogni confort. E' composta da cucina con caminetto, camera da letto e bagno, e altre 2 camere ognuna con angolo cottura e bagno. Le stanze sono ampie ed hanno le volte a stella. L'area solare è edificabile. L'abitazione è fornita di allaccio alle reti idrica, fognaria ed elettrica.
Per avere maggiori informazioni chiama o manda un messaggio WhatsApp al numero 3939354641, oppure scrivi a ecataldi@primeimmobiliare.it, oppure compila il nostro form.
Per avere maggiori informazioni chiama o manda un messaggio WhatsApp al numero 3939354641, oppure scrivi a ecataldi@primeimmobiliare.it, oppure compila il nostro form.
Contratto Vendita
Rif IMMO-50004359
Prezzo € 51.000
Provincia Lecce
Comune Tuglie
Indirizzo Via Ugo Foscolo">
Vani 5
Camere 3
Bagni 3
Classe energetica
G (DL 192/2005)
EPI 175 kwh/m2 anno
Riscaldamento inesistente
Condizioni abitabile
Arredato si
Cucina cucinotto
Consistenze
| Descrizione | Superficie | Sup. comm. |
|---|---|---|
| Principali | ||
| Immobile - piano terra | 80 Mq | 80 Mqc |
| Totale | 80 Mqc | |




























Zoom della mappa
Apri con:
Apple Maps
Google Maps
Waze
Apri la mappa






