Vendita
VILLETTA IN STILE BIFAMILIARE CON VOLTE A STELLA
PARABITA (LE)
€ 99.000
A Parabita, in zona centrale e ben servita, con una posizione che permette di raggiungere tutti i servizi principali come stazione ferroviaria, scuole e negozi, proponiamo la vendita di questo bellissimo immobile posto al piano terra di un villino bifamiliare, di circa 200 mq con area solare di proprietà.
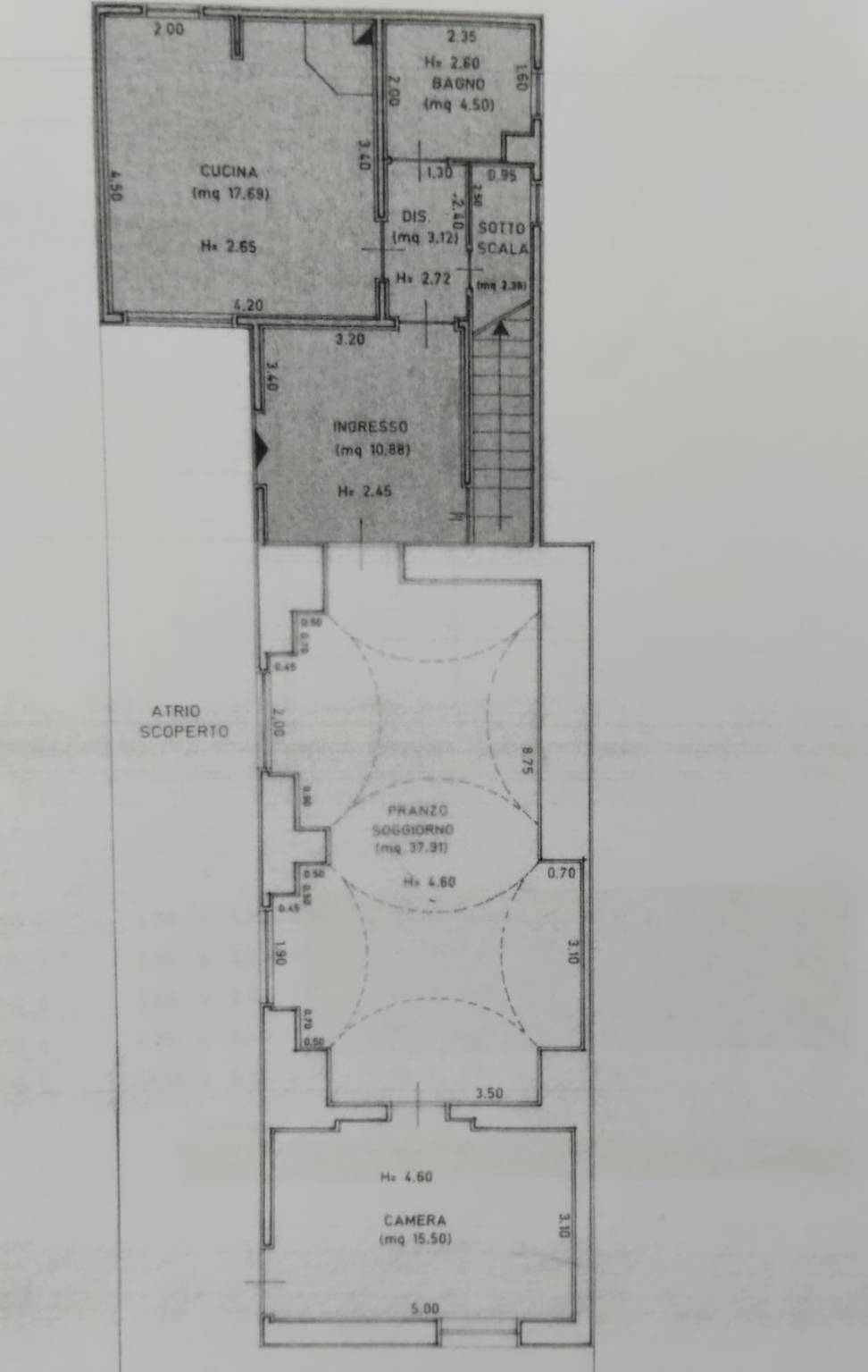
Si compone di doppio ingresso, ampio salone, cucina abitabile e bagno, mentre al piano rialzato al quale si accede tramite una bella scala in marmo, troviamo un bagno e due ampie camere da letto di cui una con affaccio e accesso alla terrazza.
Gli ambienti sono arieggiati e luminosi ed è presente l'impianto di riscaldamento con aria condizionata e caminetto. Le nostre impressioni sono estremamente positive: la casa trasmette fin da subito un senso di accoglienza e solidità.
L'immobile è allacciato a tutte le utenze domestiche, è in ottime condizioni strutturali e dunque già vivibile.
Parabita dista 12km da Gallipoli e dalle sue splendide spiagge, 35 km da Lecce e 80 km dall'aeroporto di Brindisi e dunque si conferma una scelta ideale per chi desidera vivere in un contesto autentico del Salento
Per una visita alla casa o per maggiori informazioni non esitate a contattarci al n. 393 935 4641 e in chat sempre allo stesso numero, oppure venite a trovarci in studio a Tuglie, in via Principe di Piemonte 3/F.
Si compone di doppio ingresso, ampio salone, cucina abitabile e bagno, mentre al piano rialzato al quale si accede tramite una bella scala in marmo, troviamo un bagno e due ampie camere da letto di cui una con affaccio e accesso alla terrazza.
Gli ambienti sono arieggiati e luminosi ed è presente l'impianto di riscaldamento con aria condizionata e caminetto. Le nostre impressioni sono estremamente positive: la casa trasmette fin da subito un senso di accoglienza e solidità.
L'immobile è allacciato a tutte le utenze domestiche, è in ottime condizioni strutturali e dunque già vivibile.
Parabita dista 12km da Gallipoli e dalle sue splendide spiagge, 35 km da Lecce e 80 km dall'aeroporto di Brindisi e dunque si conferma una scelta ideale per chi desidera vivere in un contesto autentico del Salento
Per una visita alla casa o per maggiori informazioni non esitate a contattarci al n. 393 935 4641 e in chat sempre allo stesso numero, oppure venite a trovarci in studio a Tuglie, in via Principe di Piemonte 3/F.
Contratto Vendita
Rif IMMO-124086983
Prezzo € 99.000
Provincia Lecce
Comune Parabita
Indirizzo Via Provinciale Matino 6">
Vani 5
Camere 2
Bagni 2
Classe energetica
G (DL 192/2005)
EPI 175 kwh/m2 anno
Riscaldamento autonomo
Condizioni ottime condizioni
Cucina abitabile
Consistenze
| Descrizione | Superficie | Sup. comm. |
|---|---|---|
| Principali | ||
| Immobile - piano terra | 150 Mq | 150 Mqc |
| Immobile - piano rialzato | 48 Mq | 48 Mqc |
| Totale | 198 Mqc | |



























Zoom della mappa
Apri con:
Apple Maps
Google Maps
Waze
Apri la mappa






