Vendita
GALATONE: LA TUA FUTURA VILLA NEL CUORE DEL SALENTO
GALATONE (LE)
€ 39.000
Se sogni una residenza esclusiva immersa nel verde, con la libertà di progettarla esattamente come vuoi, il gruppo Prime Immobiliare ha l'opportunità perfetta per te!
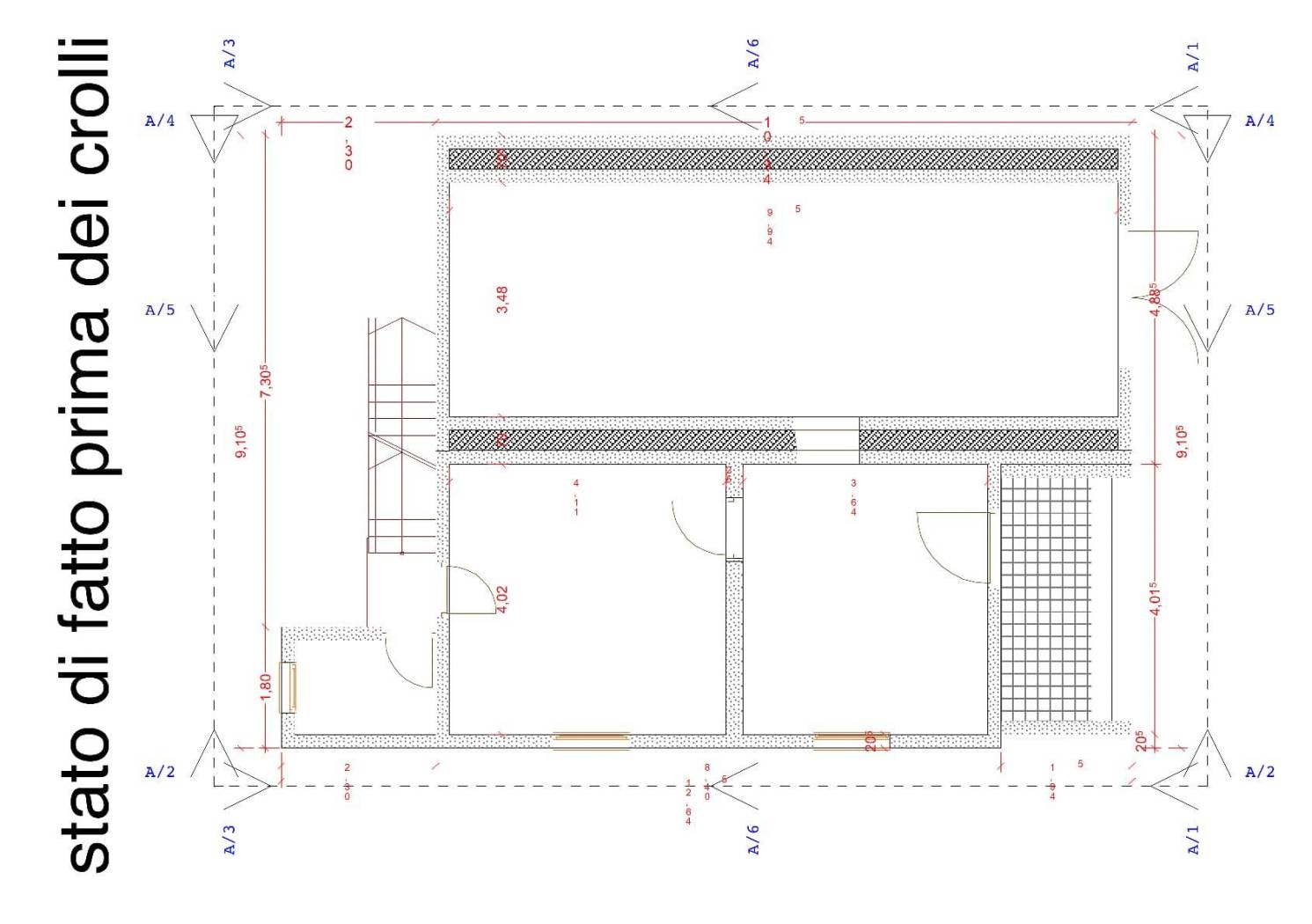
Questa tenuta di 12.000 mq non è solo un terreno ma un progetto di vita dalle potenzialità incredibili. La proprietà dispone di un fabbricato collabente di 140 mq regolarmente censito e nelle foto dell'annuncio troverai lo stato di fatto del rudere e le planimetrie che ne attestano la volumetria originale prima del crollo. Abbiamo incluso dei render che mostrano una straordinaria visione di recupero, infatti è possibile delocalizzare la cubatura spostando la posizione della casa nel punto del terreno che preferisci per garantirti la migliore esposizione e una privacy totale!
-ACCESSO DIRETTO DA STRADA ASFALTATA
-POZZO ARTESIANO NUOVO CON POMPA DA 2CV GIA' INSTALLATA
-1,2 ETTARI DI TERRENO PER GIARDINO, PISCINA O COLTIVAZIONI
-POSSIBILITA' DI AMPLIAMENTO CUBATURA SFRUTTANDO L'INDICE AGRICOLO DEL LOTTO
La soluzione ideale per una villa di lusso o una struttura ricettiva di alto livello a pochi minuti dal mare cristallino di Nardò e Gallipoli.
Per maggiori dettagli o per prenotare una visita alla tenuta, chiama o scrivi, anche su WhatsApp al n. 393 935 4641
Questa tenuta di 12.000 mq non è solo un terreno ma un progetto di vita dalle potenzialità incredibili. La proprietà dispone di un fabbricato collabente di 140 mq regolarmente censito e nelle foto dell'annuncio troverai lo stato di fatto del rudere e le planimetrie che ne attestano la volumetria originale prima del crollo. Abbiamo incluso dei render che mostrano una straordinaria visione di recupero, infatti è possibile delocalizzare la cubatura spostando la posizione della casa nel punto del terreno che preferisci per garantirti la migliore esposizione e una privacy totale!
-ACCESSO DIRETTO DA STRADA ASFALTATA
-POZZO ARTESIANO NUOVO CON POMPA DA 2CV GIA' INSTALLATA
-1,2 ETTARI DI TERRENO PER GIARDINO, PISCINA O COLTIVAZIONI
-POSSIBILITA' DI AMPLIAMENTO CUBATURA SFRUTTANDO L'INDICE AGRICOLO DEL LOTTO
La soluzione ideale per una villa di lusso o una struttura ricettiva di alto livello a pochi minuti dal mare cristallino di Nardò e Gallipoli.
Per maggiori dettagli o per prenotare una visita alla tenuta, chiama o scrivi, anche su WhatsApp al n. 393 935 4641
Contratto Vendita
Rif IMMO-126292689
Prezzo € 39.000
Provincia Lecce
Comune Galatone
Indirizzo Strada Vicinale Schiavi">
Vani 4
Camere 3
Bagni 2
Classe energetica
G (DL 192/2005)
EPI 175 kwh/m2 anno
Condizioni da ristrutturare
Cucina abitabile
Consistenze
| Descrizione | Superficie | Sup. comm. |
|---|---|---|
| Principali | ||
| Immobile - piano terra | 140 Mq | 140 Mqc |
| Accessorie | ||
| Terreno - piano terra | 12.000 Mq | 1.200 Mqc |
| Totale | 1.340 Mqc | |













Zoom della mappa
Apri con:
Apple Maps
Google Maps
Waze
Apri la mappa






